|世田谷区の土地・戸建てを安く買うなら東京マイホーム情報プラス > (戸建(売買))地域から探す > 世田谷区 > 【仲介手数料50万円OFF】■砧南小学区■長期優良認定住宅■ZEH水準住宅■省エネ性能ラベル■ > 物件詳細
【仲介手数料50万円OFFです!】
■二子玉川駅と成城学園駅を結ぶバス停「永安寺前」2分
■3LDK+ロフト+車庫
■住宅性能評価7項目で最高評価
■ZEH水準住宅
■高断熱住宅
■省エネ性能ラベル
■「他社の物件」も「仲介手数料が最大無料」です!
■「売却」の「仲介手数料が最大無料」です
■「追加リフォーム工事」も職人ダイレクトとなり中間マージンが不要となり最大50%です!
現地案内会
【外観】【お得な諸費用サービスキャンペーン中!!】 詳細は「物件概要」の「諸費用」欄をご確認下さい! ■二子玉川駅と成城学園駅を結ぶバス停「永安寺前」2分 ■住宅性能評価7項目で最高評価 ■ZEH水準住宅
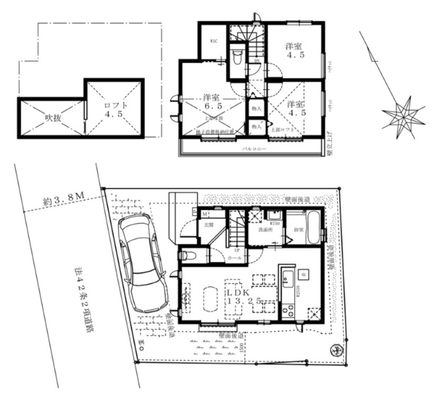
【間取り】【お得な諸費用サービスキャンペーン中!!】 詳細は「物件概要」の「諸費用」欄をご確認下さい! ■3LDK+車庫 ■住宅性能評価7項目で最高評価 ■ZEH水準住宅 ■高断熱住宅 ■省エネ性能ラベル
※写真や図と実際の現状とが異なる場合は現状を優先させていただきます。











(※元利均等方式 金利5.00%まで ※返済年数5~50年まで入力できます)
(※ボーナスは年2回で計算しています。1000万円まで入力できます)
(※物件購入時、その他諸費用が発生する場合がございます)
| 所在地 | 東京都世田谷区鎌田4丁目 | ||
|---|---|---|---|
| 交通 | |||
| 間取り/詳細 | 3LDK/ | 建物面積(坪数) | 71.20㎡(21.53坪) |
| 価格 | 6,390万円 | ||
| 駐車場/月額料金 | 有(1台)/- | ||
| 土地の敷金/保証金 | -/- | 借地料/借地期間 | -/- |
| 土地権利 | 所有権 | 土地面積(坪数) | 89.14㎡(26.96坪) |
| 傾斜地部分面積 | - | 路地状敷地 | - |
| 私道負担面積/セットバック | -/無 | 高圧線下面積 | - |
| 地目/地勢 | 宅地/平坦 | 接道状況 | 一方(西 公道 4.0m) |
| 建ぺい率/容積率 | 40%/80% | 用途地域 | 第一種低層住居専用 |
| 都市計画 | 市街化区域 | 種別/構造 | 新築一戸建/木造 |
| 階建 | 2階建 | 築年月(築年数) | 2025年 10月 (予定) |
| 総区画数/販売区画数 | 1区画/1区画 | 向き | - |
| 現況 | 未完成 | その他の法令上の制限 | 景観法/準防火地域/風致地区/高さ最高限度有/敷地面積最低限度有/日影制限有 |
| 取引態様/引渡時期 | 一般媒介/相談 | 建築確認番号 | 第HPA24042295号 |
| 物件番号 | 98391613 | 取引条件の有効期限 | 2025年11月26日 |
| 設備条件 |
|
||
| 備考 |
【仲介手数料が50万円OFFです!】 ■当社は諸費用のうち「仲介手数料が50万円OFF」です!! ■二子玉川駅と成城学園駅を結ぶバス停「永安寺前」2分 ■3LDK+ロフト+車庫 ■住宅性能評価7項目で最高評価 ■ZEH水準住宅 ■高断熱住宅 ■省エネ性能ラベル ■「他社の物件」も「仲介手数料が最大無料」です! ■「売却」の「仲介手数料が最大無料」です ■「追加リフォーム工事」も職人ダイレクトとなり中間マージンが不要となり最大50%です! ■お得になる方が多いので、まずご相談ください。 【銀行選び、資金計画】 ■元金融マンが無料相談応じます。 【諸費用について】 ■印紙代、登記費用、銀行費用、追加リフォーム工事、等が必要です。 ■当社は「仲介手数料50万円OFF」です。 【リフォーム工事が安い】 ■新築でも中古でも何か工事が発生しますが、弊社はリフォーム職人ダイレクト価格なので、中間マージンが不要となり最大50%OFFです。 ■当店内で大判の壁紙や光色の比較もできます。 |
||
| 設備(その他) | 公営水道、公共下水、都市ガス | ||
| 取扱会社 |
|
||
| QRコード |
このQRコードを読み取ることで、スマホでも物件情報を確認できます。 |
||
※地図上に表示される物件の位置は付近住所に所在することを表すものであり、実際の物件所在地とは異なる場合がございます。
【仲介手数料50万円OFF】■砧南小学区■長期優良認定住宅■ZEH水準住宅■省エネ性能ラベル■に関するこだわり条件から探す
世田谷区にある駅から探す